S12 Típusterv

2 szint

124 m²

90.47 m HUF-tól

Adatok

Galéria

Ajánlat

Ingatlan adatok

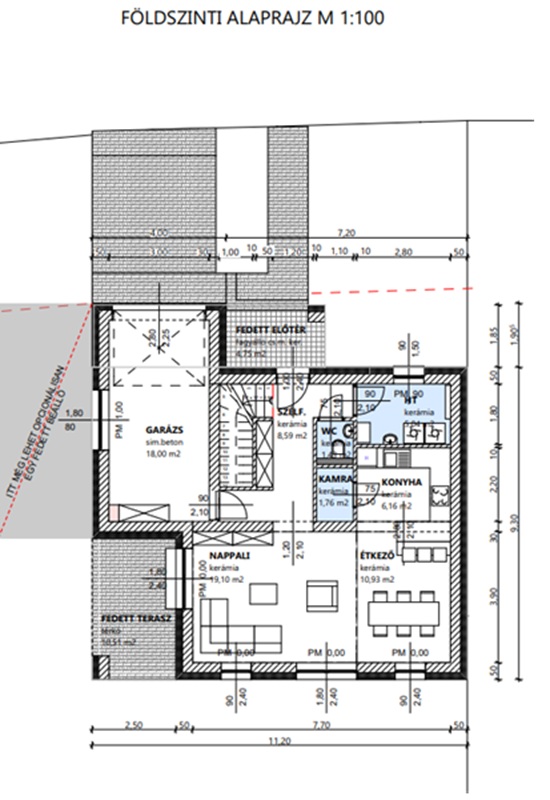
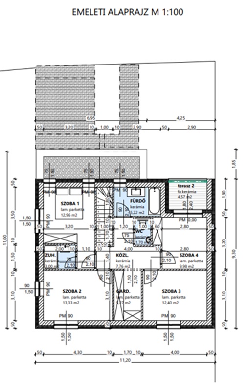
Az S12-es típusház a maga 147 négyzetméteres alapterületével (lakás + garázs + erkély), tágas terekkel, 4 szobával és és kiváló elrendezésével akár egy nagyobb család számára is kitűnő választás! Az ár mindkét készültségi foknál tartalmazza a 18 nm-es garázst, a 10.51 nm-es teraszt és a 4.57 nm-es erkélyt. A telek ára ezen felül, a választás alapján számolandó. Lakberendezőnk 3D látványtervei segítenek az Ön és családja igényeihez és ízléséhez tökéletesen illeszkedő otthon megvalósításában.

Helyiség
Méret
Étkező
10.93 m²
Háztartási helyiség
5.04 m²
Kamra
1.76 m²
Konyha
6.16 m²
Nappali
19.10 m²
Szélfogó
8.59 m²
WC
1.43 m²
Fedett előtér
4.84 m²
Fedett terasz
10.51 m²
Garázs
18 m²
Fürdő
5.22 m²
Gardrób
5.27 m²
Közlekedő
7.76 m²
Szoba #1
12.96 m²
Szoba #2
13.33 m²
Szoba #3
12.4 m²
Szoba #4
9.98 m²
WC felső
1.7 m²
Zuhanyzó
3 m²

Fűtéskész ár

90.47 m HUF

Kulcsrakész ár

109.2 m HUF

Az árak tájékoztató jellegűek, nem minősülnek nyilvános ajánlattételnek. Pontos ajánlatért, kérjük vegye fel velünk a kapcsolatot!

Galéria

Hasonló ingatlanok

L2-es típusterv

56.76 m HUF-tól

L1-es típusterv

49.59 m HUF-tól

L3-as típusterv

46.17 m HUF-tól

Kérjen ajánlatot most!